藏王
關於草庵
草庵的房型
草庵的故事
草庵的故事
YouTube
日語
繁體中文
藏王
房型列表・館內設施
3D 圖紙
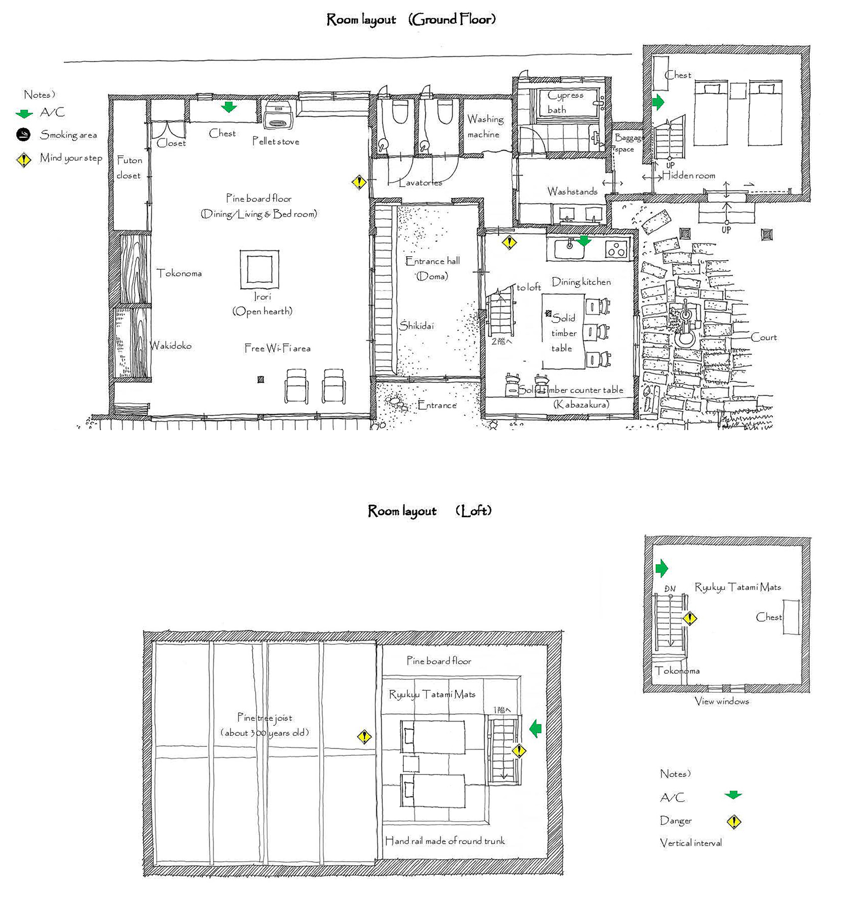
平面佈局圖
外觀
室內圖1
室內圖2
地爐房
室內圖
搖椅
閣樓
インドアビュー
傳統日式倉庫
音響系統
廚房
室內圖
客房備品
室內圖
BBQ肉烤場・比薩烤爐
山人(Yamato)庵
平面佈局圖
商務中心
室內圖
露台
室內圖
壺風呂(日式澡缸)
室內圖
和室(茶室)
室內圖
閱覽室
護摩堂
護摩堂
YouTube
老屋再生部落格
深野及笹百合庵
深野之鄉
朝日新聞
山鄉百選
UNESCO未來遺產
室生赤目青山國家公園
媒體介紹
獲獎紀錄
米其林指南
Guest Review Awards
ART & TUR 2016
ART & TUR 2018
散步・觀光
歷史・文化
神話
日本最古老的薬獵鄉
日本綠茶源自何處 ?
紀伊半島世界遺産
YouTube ( Tour 1 )
YouTube ( Tour 2 )
YouTube ( Tour 3 )
草庵周邊散步導覽地圖
便利安心導覽地圖
觀光導覽地圖
直昇機飛行遊覽
一日遊觀光地圖
初瀨街道地圖(簡略版)
初瀨街道地圖(詳細版)
名張舊城區導覽地圖
山區地圖
山紫水明鳥瞰圖
戶外活動
大自然接軌
山區健行
倶留尊山
瀑布健行
赤目四十八瀑布
湖上划艇
青蓮寺湖
腳踏車暢遊
室生寺
赤目四十八瀑布
名張藤堂家
伊賀上野城
高爾夫球場
藝術之森
草庵設備一覽
講習會・體驗會
工作坊
連結
RHS Nara
阿修羅 東京
伊賀忍者阿修羅
赤目四十八瀑布保勝會
攝影NAVI.COM
三重修驗道會
笹百合庵運營公司
登大路飯店
廣榮堂
春日野
婚宴
Photo Gallery
Video Gallery
草庵Gallery
鹿的遠音(尺八♪)
伊賀富士參景(春景)
雨圖(梅雨景)
鳥瞰圖(夏景)
山水畫(秋景)
山水畫(秋景)
水墨畫(冬景)
鳥獸戲畫(地爐景)
山紫水明鳥瞰圖
笹百合庵寫真簿
住宿・交通方式
預約方式
房型列表・館內設施
住宿條款
佳餚美饌
娛樂設施
Premium Plan
YouTube(日語)
YouTube(中文)
聯絡我們
前往旅館的交通路線
笹百合SASAYURI庵 室內平面圖(1-2樓)
茅葺家屋是用天然材料建造,所以建築本身具有冬暖夏涼的居住舒適性。但為了給習慣現代都市生活的客人提供一年四季的舒適性,本庵設有五台空調,大廳有柴火壁爐(pellet stove)和燈油爐(Kerosene heater) ,室內各處設有取暖裝置。在檜風呂(日式澡缸)浴室內亦有冷暖房設備。洗手間採用最新款式免治馬桶。廚房又跟其他房間的氛圍不同,有很時尚的吧台及凳子,充滿不同氣氛。
※ 可使用滑鼠滾輪放大配置圖,滑鼠左鍵拖曳 ※